Share
ŞİLE TAŞ EV PROJESİ
Proje Detayları
ŞİLE TAŞ EV PROJESİ
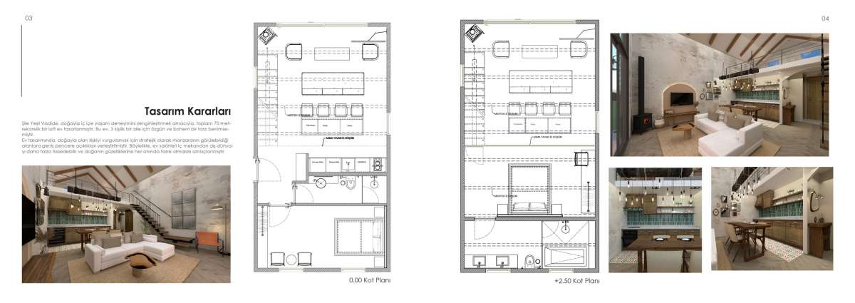
Şile'nin eşsiz doğasında yer alan Yeşil Vadi’de, doğayla iç içe yaşam deneyimini zenginleştirmek amacıyla, toplam 70 metrekarelik üç adet loft ev tasarlanmıştır. Bu ev, 3 kişilik bir aile için özgün bohem ve rustik bir tarz benimsenmiştir.
Firma Adı : ÖZEL TASARIM
Yer : Şile, İstanbul
Yıl : 2024
Tasarım : Vareon Yapı
Kategori : Mimari Tasarım ve Uygulama Projelerimiz
Bizime İletişime Geçin